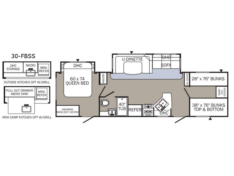
2018 puma 30fbss sale