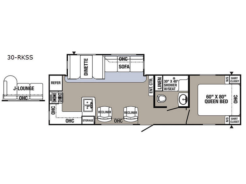
2017 puma 30rkss sale