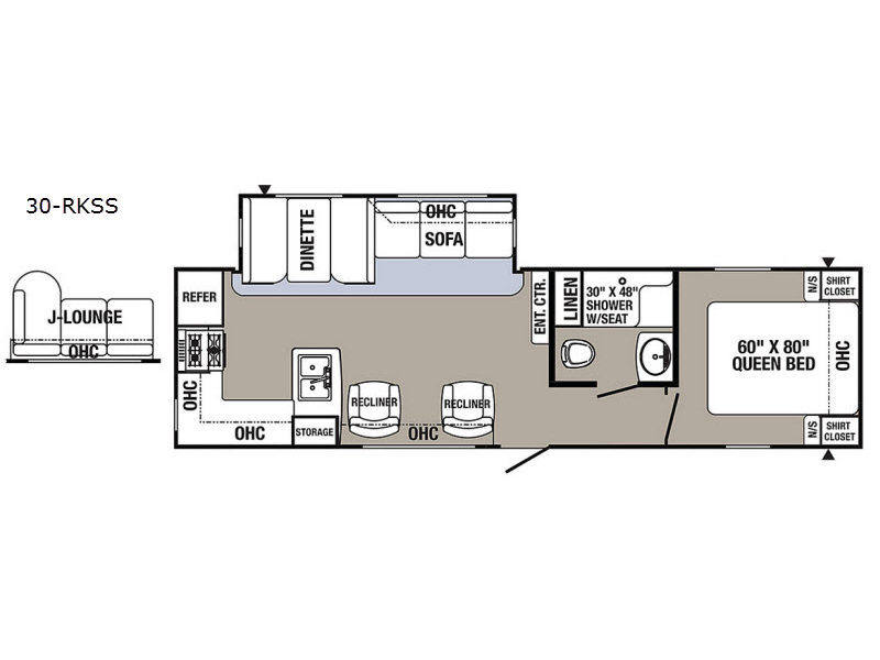
2016 puma 30rkss sale