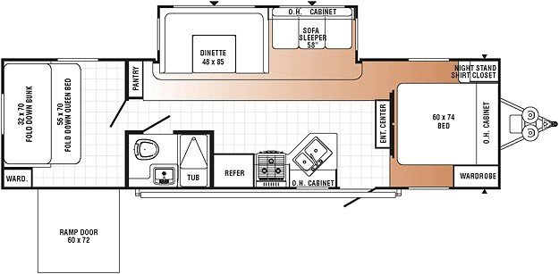
2011 puma unleashed toy hauler sale